
Фильтр
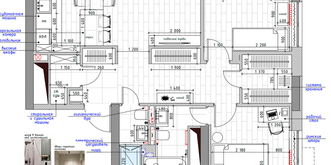
Дизайн-проект в ремонте: почему красивых картинок недостаточно, если нет рабочих решений
Когда человек планирует ремонт квартиры или дома, ему часто кажется, что дизайн-проект нужен в первую очередь для красоты. Чтобы было понятно, как всё будет выглядеть.
Чтобы выбрать стиль.
Чтобы согласовать интерьер.
Чтобы “не делать на глаз”. На старте это звучит разумно.
Особенно если кажется, что будущая картинка уже примерно сложилась и всё остальное можно будет решить по ходу работ. Но именно здесь и появляется одна из самых дорогих ошибок ремонта. Потому что ремонт без нормального проекта почти никогда не ломается сразу.
Он начинает терять управляемость постепенно - в мелких решениях, которые по отдельности кажутся незначительными, а потом превращаются в переделки, лишние расходы и сдвиг сроков. И в Ростове-на-Дону, и в Батайске, и в Аксае эта логика одна и та же: чем меньше в проекте реальных рабочих решений, тем больше объект начинает “додумывать” уже на месте. Большинство заказчиков путают две вещи: Визуализация отвечает на вопрос, как это может выглядеть.
Рабочий проект отве
Показать еще
Руководитель проекта в ремонте: почему без одного ответственного объект почти всегда начинает буксовать
Когда человек заходит в ремонт квартиры или дома, ему кажется, что главное уже сделано: найдены специалисты, понятен прайс, определены материалы, можно начинать. На старте это действительно выглядит логично.
Есть электрик.
Есть сантехник.
Есть плиточник.
Есть отделочник.
Есть договорённости.
Кажется, что дальше объект должен просто двигаться по плану. Но именно здесь и появляется одна из самых дорогих иллюзий ремонта. Объект почти никогда не начинает буксовать из-за одной большой проблемы. Он начинает разваливаться на мелких разрывах между этапами, решениями, закупками и людьми. Один специалист закончил свою часть, а следующий ещё не готов выйти. По узлу нужно решение, но к нему вернулись слишком поздно. Материалы частично приехали, но не к своему этапу. Замечание по качеству увидели уже после того, как следующий блок работ пошёл поверх проблемы. Снаружи это выглядит как обычные накладки.
На деле это и есть потеря управления. И именно поэтому вопрос не в том, нужны ли на объекте хорош
Показать еще
Материалы и закупки в ремонте: почему именно здесь чаще всего срываются сроки и растёт бюджет
Когда человек планирует ремонт квартиры или дома, его обычно волнуют две вещи:
не выйти за бюджет и не утонуть в переносах. И очень часто обе проблемы начинаются не на самих работах, а на материалах. Потому что со стороны всё выглядит просто:
выбрали, купили, привезли, установили. Но в реальном ремонте материал — это не отдельная покупка.
Это часть общей организации объекта. Если закупки не привязаны к этапам, решения принимаются в последний момент, а ключевые позиции выбираются по ходу работ, ремонт почти всегда начинает терять управляемость. Сначала это кажется мелочью. Потом превращается в паузы между этапами, сдвиг сроков, переделки и лишние расходы. Многие думают, что главная зона риска — это бригада.
На практике объект чаще начинает буксовать раньше: в тот момент, когда материалы живут отдельно от логики ремонта. Обычно это выглядит так: Именно поэтому даже нормальная команда специалистов не спасает ремонт, если снабжение и закупки устроены слабо. Когда объект изначально собира
Показать еще
Сроки ремонта квартиры: как понять, реальный ли срок вам называют или просто хотят быстрее закрыть сделку
Когда человек планирует ремонт квартиры или дома, один из первых вопросов всегда один и тот же: сколько это займёт по времени. И за этим вопросом стоит не просто интерес.
За ним — аренда, переезд, заказ кухни, доставка мебели, жизнь семьи в пыли и ощущение, что всё подвисло на неопределённый срок. Именно поэтому фраза подрядчика «сделаем быстро» многим кажется хорошим знаком.
Но в ремонте это одна из самых опасных формулировок. Потому что быстро назвать срок — не значит честно его посчитать. Очень часто срок ремонта называют ещё до того, как по объекту есть нормальная рабочая картина. Не до конца разобран состав работ.
Не приняты ключевые решения по электрике, сантехнике и отделке.
Не увязаны закупки с этапами.
Не определены точки контроля.
Не разобраны реальные слабые места объекта. Но срок уже озвучен. Причина простая: клиенту легче продать понятную цифру, чем объяснить реальную логику ремонта. На старте это выглядит как уверенность подрядчика. На практике это нередко просто удобно
Показать еще
Черновая сантехника в квартире: что нужно продумать до начала работ, чтобы потом не переделывать ремонт
Когда заказчик думает о ремонте, сантехника обычно воспринимается как что-то второстепенное. На первом плане чаще оказываются плитка, двери, стены, свет, бюджет и сроки. А сантехническая часть кажется чем-то техническим: трубы спрячут, выводы сделают, воду подключат — значит, всё в порядке. Именно в этом и кроется одна из самых опасных ошибок. Черновая сантехника — это не просто этап, который нужно «закрыть» до отделки. Это основа того, насколько удобной, безопасной и обслуживаемой будет квартира после ремонта. Если на этом этапе допущены ошибки, они могут долго не проявляться. Но когда проявляются, последствия обычно самые неприятные: протечки, неудобный доступ к узлам, конфликт размеров, демонтаж отделки и лишние расходы. Если с электрикой дискомфорт часто проявляется сразу — неудобная розетка, неудачный выключатель, слабый свет — то с сантехникой всё коварнее. Часть проблем становится заметной только спустя время:
— где-то появляется влага;
— к узлу невозможно нормально подлезть;
—
Показать еще
Черновая электрика в квартире: что нужно продумать до начала работ, чтобы не переделывать ремонт потом
Когда заказчик думает о ремонте, электрика часто воспринимается как техническая часть, которую можно спокойно «доделать по ходу».
Именно в этом месте и начинается будущая проблема. С плиткой, краской или дверями человек хотя бы понимает, что будет видеть результат каждый день. С электрикой всё иначе: пока стены открыты, кажется, что провода, точки, группы и выводы — это дело специалистов, и вникать в это необязательно. Но на практике ошибки в черновой электрике становятся одними из самых дорогих и самых раздражающих во всей квартире. Потому что неправильно расположенная розетка — это не просто неудобство.
Это удлинители, перенос мебели, лишние штробы, демонтаж отделки, неудачный свет, перегруженные зоны и ощущение, что квартира вроде отремонтирована, а пользоваться ей неудобно. Главная проблема в том, что электрику часто начинают без полноценного сценария жизни в квартире. Типичная логика выглядит так:
— «здесь сделаем пару розеток»;
— «на кухне потом разберёмся по месту»;
— «свет под
Показать еще
Как принимать этапы ремонта квартиры и не упустить ошибки, которые потом уже не исправить без переделок
Большинство заказчиков думают о приёмке слишком поздно. Обычно контроль сводится к финальному осмотру, когда уже поклеены обои, уложена плитка, установлена сантехника и кажется, что осталось только оценить внешний вид. Это одна из самых опасных ошибок в ремонте. Потому что самые дорогие проблемы часто скрыты не в чистовой отделке, а внутри: в геометрии стен, в электрике, в сантехнических узлах, в подготовке основания, в примыканиях, в последовательности работ. Когда объект дошёл до финиша, многие ошибки уже либо не видны, либо исправляются только через демонтаж и новые расходы. Именно поэтому ремонт нужно принимать поэтапно. Если вы ещё не читали материал о том, как в целом должен быть организован ремонт по этапам, лучше сначала держать в голове общую логику процесса. А уже потом смотреть, что именно нужно проверять на каждом этапе. На финальном этапе заказчик обычно видит только поверхность:
ровность покраски, внешний вид плитки, аккуратность примыканий, установленные розетки, двери,
Показать еще
Как проходит ремонт квартиры по этапам: от договора до сдачи объекта
Для большинства людей ремонт выглядит как один длинный и непонятный процесс.
Кажется, что всё просто: договорились, начали, закончили.
Но на практике спокойный и предсказуемый ремонт возможен только тогда, когда он идёт поэтапно, с понятной последовательностью и контролем каждого блока работ. Разберём, как это должно быть устроено. Управляемый ремонт начинается с того, что стороны заранее понимают: Именно на старте становится понятно, будет ли процесс прозрачным или проблемы начнутся уже в середине объекта. Поэтому при ремонте квартир в Ростове-на-Дону важно фиксировать не только итоговую сумму, но и всю логику процесса. После согласования начинается подготовка объекта. Обычно сюда входят: Этот этап часто недооценивают.
Но именно он влияет на то, насколько собранно и аккуратно пройдут все следующие работы. Дальше начинается то, что многие и называют «самим ремонтом»: На этом этапе особенно важно не спешить.
Если база сделана плохо, чистовая отделка позже начнёт терять качество. Отдельн
Показать еще
Главные ошибки при выборе подрядчика на ремонт квартиры
Когда начинается ремонт, большинство людей выбирают подрядчика по двум критериям:
портфолио и цена. Но именно на этапе выбора подрядчика чаще всего закладываются будущие проблемы ремонта. Разберём основные ошибки, которые допускают заказчики. Самая распространённая ситуация — сравнение только итоговой стоимости. Но если цена значительно ниже рынка, чаще всего это означает: Поэтому при ремонте квартир в Ростове-на-Дону важно анализировать не только цену, но и структуру расчёта. Договор должен фиксировать: Если договор формальный или слишком общий, любые разногласия превращаются в спор. Ремонт — это последовательность этапов. Если этапы не зафиксированы: Поэтому более прозрачной считается схема ремонта без предоплаты, когда каждый этап принимается отдельно. Иногда на объекте работают разные специалисты, но нет одного человека, который координирует работу. В результате: При ремонте под ключ в Ростове-на-Дону управление процессом играет ключевую роль. Выбор подрядчика должен строиться не
Показать еще
загрузка
Показать ещёНапишите, что Вы ищете, и мы постараемся это найти!
Левая колонка
О бизнесе
Канал в Дзене
АРТИ студия ремонта — компания, которая выполняет ремонт квартир и домов под ключ в Ростове-на-Дону честно, прозрачно и под контролем. Мы берём на себя весь процесс: от первого замера и составления сметы до финальной отделки и уборки. Заказчику не нужно следить за бригадами — достаточно видеть результат. Работаем официально, по договору, без предоплаты. Оплата производится только за реально выполненные этапы.
Больше примеров выполненных объектов - artiremont.ru
- 89081753182
- Ростов-на-Дону

